Строительство двухэтажного, утепленного, административного здания. Объект интересен тем, что находится внутри уже построенного здания. А так как объект под кровлей внутри существующего здания, значит, нет снеговых и ветровых нагрузок, здание лёгкое из ЛСТК.
Строительные работы делились на три этапа:
1 этап - монтаж каркаса
2 этап - отделка помещений
3 этап - проводка с подключением всех коммуникаций (канализация, водопровод, отопление, сантехника, отопление, вентиляция).
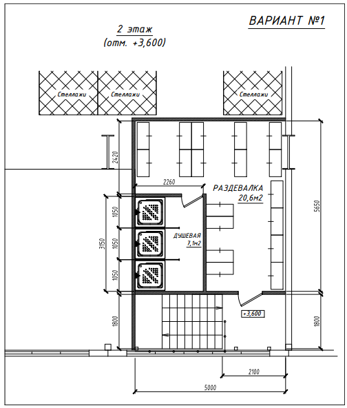
План этажей здания
1 этап работ - монтаж каркаса из ЛСТК
Готовим базы колонн (это элементы, на которые ставятся колонны здания). Мы их сваривали самостоятельно, до этого предварительно нарезали пластины из листа лазерной резкой по проекту. Рабочий процесс ниже.
Расставляем базы колонн на объекте, согласно проекту оси рисуем и расставляем базы, крепя их на распорные анкера. Нам повезло, пол внутри здания ровный, и нам не пришлось выверять высотные отметки по базам колонн, просто крепим их на распорные анкера по 4 штуки. Далее на болты к базам прикручиваем колонны, фотографии листайте ниже.
Доставка каркаса, все пересчитывается, делается разгрузка, выглядит это вот так (см.
Обратите внимание: ДО и ПОСЛЕ отделки декоративным искусственным камнем. Пять объектов с фото..
фото). Привозится на одной машине - длинномере.Далее, монтаж самого каркаса здания из конструкций ЛСТК
Межэтажное перекрытие делалось по такому пирогу
2 этап работ - отделка помещений
Лестницу мы тоже сделали из ЛСТК
Сначала я покрасил ограждения в яркий цвет, но заказчику не понравилось, хочет серый, пришлось перекрасить.
Для кухонного стола в столовой, установил фартук на стену, чтобы не заляпали.
3 этап работ - коммуникации
В них входит: водопровод, отопление, канализация, вентиляция и кондиционирование. Кстати, на этом этапе заказчик нас и кинул, не заплатил за работы 378 000 руб., подробней я написал статью про это.
Радиаторы были установлены хорошей фирмы, очень тонкие (примыкают к стене, занимают очень мало места).
Вентиляция была выполнена с подогревом воздуха. В общем здание было построено под ключ.
Не доплатил заказчик по объекту 378 тыс. р.: прочитать по ссылке.
Вам может быть еще интересно:
✦ Ускоренное видео монтажа здания
Если статья была полезна и вы дочитали её до конца, поддержите проект лайком. Это влияет на его развитие. И подписывайтесь на канал). Пишите в комментариях.
Канал | ВК | Инста | Fb | Ок | YouT | Сайт
© Анатоль Иванов - заметки строителя
Больше интересных статей здесь: Интерьер.
Источник статьи: Построили здание в здании (5х7м в 2 этажа), видео в конце статьи, снеговых и ветровых нагрузок нет, объект из лстк.

