В декабре 2021 года начался III этап стройки на нашем объекте Приветное-2. Прошлый раз этот дом я показывал в мае 2021, с тех пор его облик изменился – вместо зелёного Isoplaat-a на фасаде появились японские фиброцементные панели KMEW:
Полное название материала звучит как "панель KMEW Гидрофиль коут, 14 мм", на объекте использованы три разных варианта: CW2122, CW1831 и СW1818, под штукатурку, дерево и кирпич соответственно.
Основной цвет панелей на первом и втором этаже совпадает, но тип фактуры отличается, что заметно, если присмотреться повнимательнее:
Данная разновидность панелей подразумевает крепёж на саморезы, которые в последствии маскируются с помощью герметика и фирменной краски, идеально совпадающей с цветом панелей.
Фрагмент стены, на котором хорошо виден крепёж:
Горизонтальные швы между панелями практически не видны, а вот вертикальные требуется заполнять заводским герметиком.
Для формирования вертикального стыка панелей применяется специальная разделительная планка:
После обработки герметиком и подкраски найти шляпки саморезов уже затруднительно, попробуйте сделать это на фото:
На внешних откосах применяются те же самые фасадные панели:
На углах фасадные панели запиливаются под 45°, а стык заполняется герметиком. Честно говоря, запилы на данном объекте выполнены не слишком аккуратно, покажу парочку пугающих фото:
Заполнение шва герметиком полностью проблему аккуратности внешнего вида не решит, потребуется кропотливая подкраска сколов маленькой кисточкой. В этом смысле использование профилей внешнего угла или угловых элементов упрощает монтаж, однако внешний вид дома с уголками не всем нравится.
На момент съёмки фасадные работы ещё не были завершены, так что показать полностью готовый фасад смогу только в следующий раз.
Отмостка дома выложена крупноформатной плиткой, цоколь отделан плиткой под камень:
Установлен незамерзающий кран:
Металлическая дверь в котельную:
Обратите внимание на необычную деталь – внизу производителем сделана перфорация для вентиляции:
Деревянные перила на террасе:
Если кому-то интересны основные размеры перил:
Вход в дом, входная дверь тоже металлическая:
Светильники на крыльце-террасе:
На полу террасы доска из лиственницы, размер 28*120 мм:
Внутри дома, сразу напротив входа, нас встречает котельная, оборудованная двумя котлами, электрическим (на момент съемки корпус котла демонтирован) и газовым:
Спальня на первом этаже:
Кухня-гостиная, фото сделано ещё в феврале:
Санузлы, на стенах влагостойкий гипсокартон:
Лестница на второй этаж:
Окно на лестничной площадке:
Думаю, уже все заметили, что стены обшиты не гипсокартоном.
Обратите внимание: Когда пора заказать геодезические работы.
На этом объекте заказчик пожелал использовать плиты МДВП Белтермо TOP размером 2480*580*35 мм:Плита крепится к стойкам гвоздями, межу стойкой каркаса и плитой прокладывается демпферная лента. Такой вариант отделки позволяет улучшить звукоизоляцию помещений, а также служит дополнительным утеплением.
Определённые сложности вызвала установка розеток, пришлось делать дополнительные закладные между стойками для надёжного крепления подрозетников, плита ведь мягкая и на это не рассчитана.
Схема закладных (узел не типовой, в чертежах отрисован заранее не был):
Камин и дымоход на этом этапе мы не ставим, заказчик планирует заняться этими работами позже. В перекрытии оставлен проём для монтажа трубы:
Сендвич-панель на оконных откосах на этом объекте в цвет ламинации окон и подоконники тоже, смотрится очень аккуратно:
Если вы больше любите видео, а не фото, то всё вышеописанное можно увидеть в небольшом ролике:
Есть ещё несколько февральских снежных фотографий дома:
Планировка дома
Вообще-то в прошлой публикации планировки я уже показывал, но вполне можно повториться:
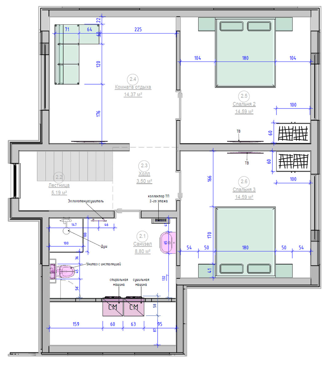
Планировка с привязкой мебели и оборудования:
Экспликация помещений:
Трёхмерный вариант планировки:
Возможно, из планировок не совсем понятно, как будет сделан с/у на втором этаже, вот развёртка пристенка:
Будущая зона кухни:
Рендеры:
И на этом пока всё :) Надеюсь, дом вам понравился! Ждём окончания всех работ, постараюсь потом показать полностью готовый фасад.
Подписывайтесь на мой канал чтобы следить за новыми публикациями!
#дом #загородный дом #фасад #японский фасад #отделка дома #отделка фасада #строительство #стройка #андрейшанс_приветное2
Больше интересных статей здесь: Стройка.
Источник статьи: Каркасный дом 8*10 на ушп в Приветном, фасадные и внутренние работы, японский фиброцемент.

