Характеристики проекта: 130 м2, 11,0 х 11,0. Проект относится к разделам: с мансардой, коттеджи, дома в европейском стиле, дома с многоскатной крышей, прямоугольные дома, Г-образные дома, дома с 3 спальнями, с террасой, с 1 спальней на первом этаже, с котельной, с панорамными окнами, от 100 до 150 кв.м.
Проект с тремя спальнями расположился на общей площади с 133,9 кв. м. Внешне проект выполнен в дереве. За счет дополнительных фронтонов и интересного остекления проект интересно смотрится со всех сторон. Большие окна выполнены симметрично: украшают внешний вид дома и наполнят комнаты огромным световым потоком!
Здесь этот проект более подробно с ценой и характеристиками
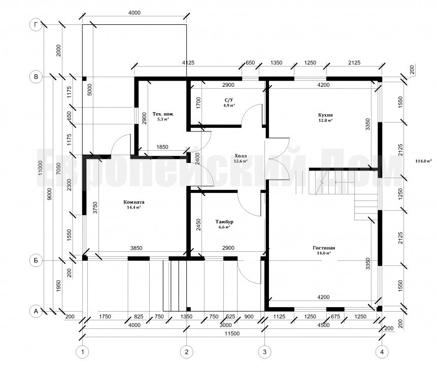
Правую часть первого этажа занимает совмещенная кухня-гостиная с остеклением на три стороны. В зоне гостиной расположилась лестница на второй этаж.
Центральная часть дома отведена под входную группу: удобное просторное крыльцо, далее просторный тамбур, где удобно и снять верхнюю одежду и разместить систему хранения.
Здесь подборка похожих домов с многоскатной крышей
Из холла мы расходимся по всем помещениям первого этажа. Слева от входа расположилась одна из спален проекта с выходом на террасу.
Котельное помещение имеет вход из дома, но при желании можно организовать вход в него и с улицы.
Проект имеет один санузел на первом этаже. Однако площадь второго этажа позволяют организовать на нем второй санузел.
Второй этаж представляет собой классическую мансарду. Здесь расположились две одинаковые спальни по 18 кв. м. Между собой они разделены холлом с лестницей.
Подписывайтесь на наш канал, здесь много интересного про дачу, а также новые проекты загородных домов каждый день!
