С вами опять я, дизайнер Дмитрий. Выполняю проекты, чертежи и визуализацию индивидуальных домов для организаций и частных людей.
Здесь в разделе выкладываю эти проекты, если кому-то пригодиться при строительстве своего дома, буду очень рад. Смотрите, пользуйтесь. Можете брать на вооружение, можете, конечно, корректировать, как вам нравится.
Сегодня эскизный проект дома из блоков, (газоблоков, шлакоблоков, керамзитоблоков) с отделкой облицовочным кирпичом, общей площадью 176 кв.м.
Кладка основных стен по проекту толщиной 375 мм. Для перегородок используется 250 и 100 мм. Несущая стена в центре тоже 375 мм. Для перекрытия планируется выполнение армопояса по всему периметру.
- Объем используемого материала сможете посмотреть в конце статьи.
Давайте, как всегда посмотрим на дом снаружи. Визуализация.
Вариант внешней отделки дома выполнен из облицовочного кирпича желтого и коричневого цветов.
Можете также посмотреть другой варианты внешнего дизайна и отделки дома. Другой вариант из кирпича, вариант отделки дома штукатуркой и частично камнем. Эти варианты в галерее ниже.
Какой вам вариант больше нравится може выбрать сами. Теперь планировка дома.
План 1-го этажа.
Площадь первого этажа 101,9 кв.м.
- Перед входом в дом большая терраса площадью 20,5 кв.м.
- Затем тамбур 4,5 кв.м., с которого мы попадаем в холл. Можно и отсюда сделать вход в бойлерную. По проекту вход в нее с террасы, с улицы.
- Площадь бойлерной 5,5 кв.м. При такой площади, потолки первого этажа можно делать не 3 м., а 2,8 м. Этого будет достаточно для соблюдения нормы бойлерной в 15 куб.м.
- Холл 6,8 кв.м. Лестница здесь находится в холле и на второй этаж можно пройти отсюда.
- Гостиная-столовая площадью 32,6 кв.м. и отдельная кухня 13,4 кв.м. кому хочется, чтобы кухня была отдельным помещением.
- Гостевая комната на первом этаже площадью 13 кв.м. Можно разместить гостей, или скажем родителей.
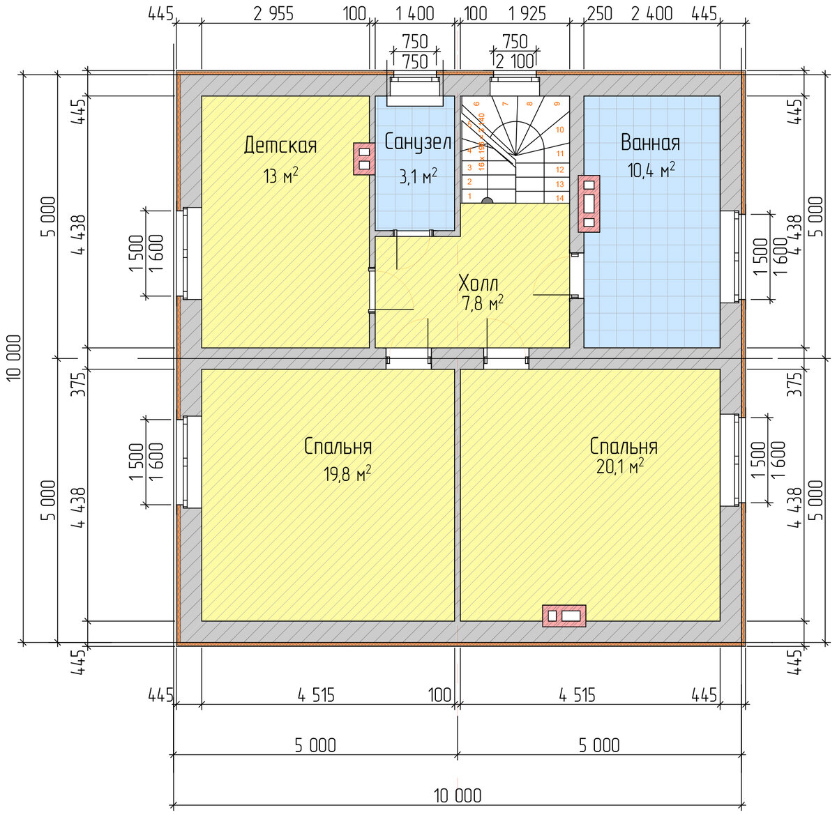
План 2-го этажа.
Площадь 2-го этажа 74,2 кв.м.
Холл второго этажа 7,8 кв.м. На втором этаже есть отдельно санузел 3,1 кв.м. и большая ванная комната 10,4 кв.м. Три спальни: 13 кв.м., 19,8 кв.м. и 20,1 кв.м.
Объем используемого материала для строительства.
- Общий объем блоков - 126 куб.м.
- Объем облицовочного кирпича: 13,82 куб.м. - желтого, 19,18 куб.м. - коричневого. Общая площадь наружных стен, если штукатурить 308 кв.м.
- Площадь кровли - 196 кв.м.
Если понравилось, ставь лайк! Другие проекты смотрите в разделе.
Подписаться в раздел можете по ссылке: "Проектируем дом сами"

