С вами снова я, дизайнер Дмитрий. Я выполняю архитектурные визуализацию проектов индивидуальных домов и проектирую дома сам.
Здесь делюсь с вами выполненными проектами, чтобы вы смогли их использовать при проектировании и строительстве своего дома.
Это статья - продолжение серии проектов каменных домов от 40 до 230 кв.м. Серия этих проектов готовила для себя строительная компания, строящая дома для людей по подбору необходимой площади. Конечно, каждый проект делается индивидуально, но на какой-то базовый, вы можете ориентироваться. Проекты с предыдущими площадями в статьях ранее. У нас следующий дом в этой серии.
Дом выполнен их кирпича, с облицовкой фасадной части облицовочным кирпичом двух цветов. Большей части красного, с небольшим использованием желтого, для удешевления строительства. Кровля двускатная.
Внешний вид дома посмотрим на картинках с визуализацией.
Визуализация.
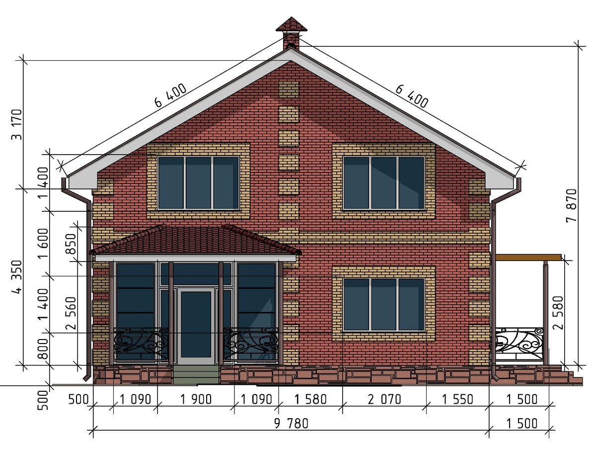
Размеры по фасадам, с высотными размерами можете посмотреть на самих фасадах. Здесь же вы сможете сориентироваться с размерами окон, проемов и лаг кровли. В принципе, это будет вам достаточно, при строительстве дома по этому проекту.
Фасады.
Кладка основных наружных стен толщиной 500 мм. Можно делать основную кладку из кирпича или из блоков, толщиной 380 мм. с облицовочным кирпичом 120 мм. Несущая стена в центре толщиной также 380 мм., остальные перегородки в 120 мм.
План 1-го этажа.
Крыльцо в данном проекте делится как бы на два. Одно наружное, со ступеньками и второе внутри ниши, застекленное, которое служит тамбуром. Площадь крыльца в нише 6,12 кв.м.
Далее идет прихожая 3,6 кв.м, где находятся шкафы для одежды по обоим сторонам. С нее мы попадаем в холл 6,22 кв.м. В холле располагается в углу лестница на второй этаж, вход в санузел на 4,29 кв.м. и есть еще гардеробная отдельная 3,74 кв.м.
Вход в большое помещение, кухня-гостиная. Объединенная, площадью 30,66 кв.м. Кто хочет, может поставить перегородку. Только вход в кухню будет через гостиную. Также с гостиной можно выйти на террасу, находящуюся с правой стороны дома.
План 2-го этажа.
На второй этаж мы попадаем с левой стороны дома в коридор площадью 7,01 кв.м. Здесь второй санузел на 4,36 кв.м. и три спальни: 13,73 кв.м., и две по 15,39 кв.м. В каждой спальне могут разместиться по два человека.
Понравилось, ставь лайк! Другие проекты смотрите в разделе. Подписаться в раздел можете по ссылке: "Проектируем дом сами"

