Здравствуйте друзья!
С вами снова я, дизайнер Дмитрий. Выполняю визуализацию и дизайн архитектурных объектов и индивидуальных домов. Работы выполняю для строительных и проектных организаций, проектирую сам и делаю обзор выполненных работ и проектов на этом сайте.
Это поможет вам определиться с видом, планировкой и строительством своего дома. Может пригодиться при строительстве.
В этой статье продолжаю серию кирпичных домов разных площадей от 40 до 230 м². Другие проекты из этой серии и не только, найдете у меня в разделе.
- Подробные размеры фасадов в галерее с визуализацией, а планы этажей с размерами в конце статьи.
Кладка наружных стен толщиной 500 мм. (380 мм. обычный полнотелый кирпич и 120 мм. облицовочный кирпич красного и желтого цветов.) Можно обычный кирпич заменить на какие-нибудь блоки из шлака, керамзита или еще чего.
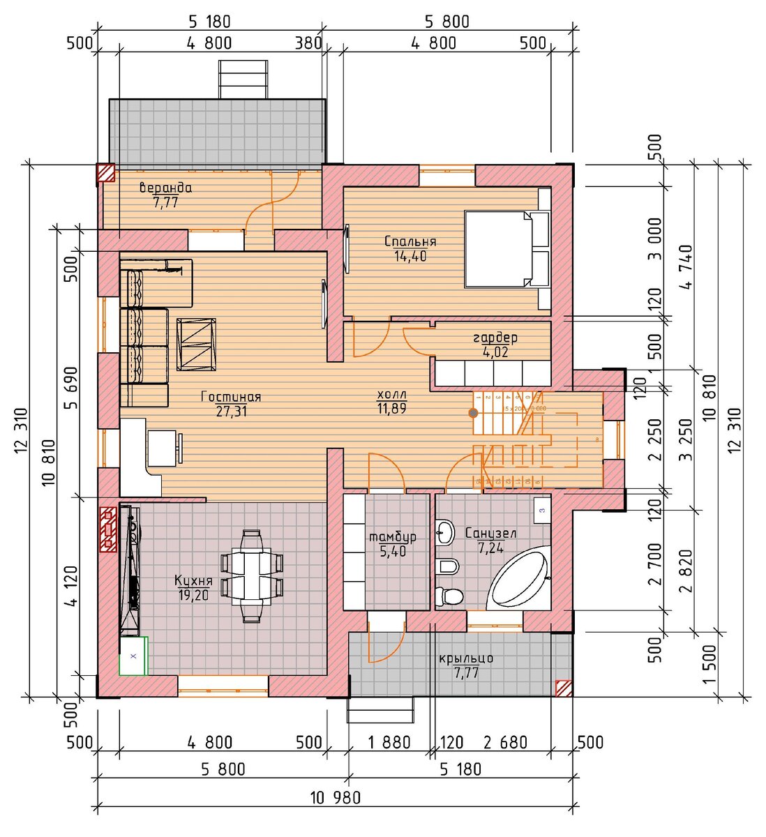
Большое крыльцо при входе, площадью 7,77 м², которое находится под балконом. Далее тамбур с гардеробом 5,4 м², с которого попадаем в холл площадью 11,89 м², лестница на второй этаж находится здесь. Санузел 7,24 м². Есть отдельный гардероб 4,02 м². С холла большой проем с входом в гостиную, площадью 27,31 м², с нее выход на веранду 7,77 м² и террасу на задней стороне дома. Кухня отделяется перегородкой, площадь 19,20 м². На первом этаже есть одна спальня, площадью 14,40 м².
Холл второго этажа 9,99 м². Второй санузел площадью 6,93 м² . Четыре спальни: 16,94 м² , 17,42 м² , 20,45 м² и 13,07 м². Есть еще отдельный гардероб с холла 4,51 м² и с двух спален выходы на два отдельных балкона по 7,77 м² .
Итого, в жоме могут разместиться для проживания 9 человек.
Понравилось, ставь палец вверх! Больше домов на моем сайте: "Проектируем дом сами"


