Я, дизайнер Дмитрий и вновь знакомлю вас с различными проектами индивидуального строительства. Как с своими, так и с проектами других разработчиков, понравившихся мне. Кроме этого, вы можете почитать просто разную информацию, касающуюся возведению своего частного дома и увидеть, как выглядят коттеджи, в которых живут известные люди. Почему бы и нет, правда ? Может от них можно взять что-то полезное.
В этой статье, проект небольшого одноэтажного дома, выполненного мной самим.
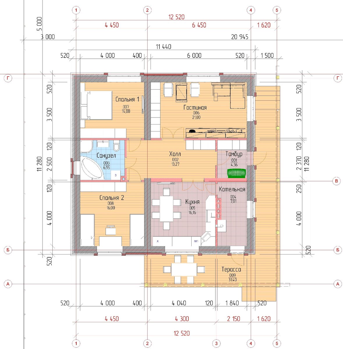
Строить предполагалось из блоков с облицовкой облицовочным кирпичом серого цвета с отделкой местами коричневым. Окна с обычными белыми рамами и кровля из металлической черепицы цвета "шоколад". Так дом был спроектирован, так и был построен.
Вход в дом происходит сбоку. Большое крыльцо идет вдоль всего дома справа, переходя в террасу. С улицы мы ходим на это крыльцо, а с него уже попадаем в само наше жилище через тамбур в 4,36 м², в котором есть место раздеться и повесить верхнюю одежду и диванчик присесть обуться. Далее идет, как обычно, холл 13,27 м². Котельная площадью 7,01 м². Рассчитывали так, чтобы потолки были обычные, не высокие. Попасть в котельную можно через кухню, но так захотел хозяин, хотя можно было сделать вход и с тамбура.
Санузел площадью 6,95 м² получился общим и находится прямо на против двери. Раздельно делать задачи не было. А санузлом разделили две спальни - взрослую и детскую в целях шумоизоляции, чтобы они не получались через стенку - чтобы дети особо не слышали, чем взрослые в спальне занимаются. Взрослая спальня 14 м², детская чуть больше на двоих детей 16 м².
Гостиную и кухню тоже разделили. Гостиная 21 м² и выходит окнами на улицу. Кухня 16,16 м². Выход окна на территорию участка и террасу. Выход с кухни на террасу делать не стали, ограничились выходом с котельной.
Такой вот получился 3-х комнатный дом для семьи из 4 человек. Какие-то моменты, я возможно бы и сделал по другому, но в данном случае решение принимал сам хозяин, ему так удобнее.
Часто планировка в 3D выглядит более наглядно и лучше воспринимается, чтобы понять как, что и где расположено. Не все могут судить чисто по планам.
Это для тех кому нужны именно планы. Да и размеры, конечно, чтобы строить.
